Angebote Mietobjekte Gewerbeobjekt

Provisionsfrei! Sehr schöner Laden für Café, Bäckerei, Gastronomie oder Einzelhandel, im Rudolfkiez!

Ihre Ansprechpartnerin

Susann Linke

Operations Specialist
Immobilienkauffrau (IHK)

3.699 €

Mietpreis

149.62 m²

Fläche

Nebenkosten 257 €

Verfügbar ab voraussichtlich im Frühjahr 2025 (nach Absprache)

Baujahr 1905

Zustand Gepflegt

Kaution 3 Monatsmieten

Provisionsfrei Keller

Objektbeschreibung

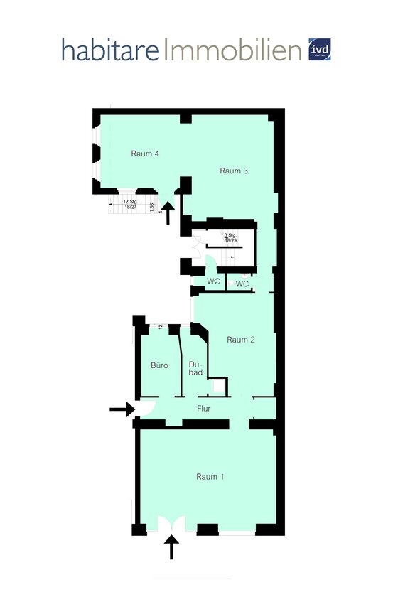
Provisionsfreie Vermietung, gute Geschäfte im beliebten Friedrichshainer Rudolfkiez! In einem ansehnlichen Altbau aus dem Jahr 1905 befindet sich diese vielbranchig nutzbare, hochinteressante Ladenfläche. Die Liegenschaft befindet sich in geflegtem Zustand und das charmante Schaufenster bietet einen passenden Rahmen für Ihr Vorhaben. Die Umgebung rund um den Rudolfkiez hat sich in den letzten Jahren prächtig entwickelt: es ist Leben auf der Straße und interessante Geschäfte, Cafés und gastronomische Einrichtungen sind hier entstanden - ideal für Ihre Geschäftsidee. Die Nähe zur Spree und z.B. zur überregional bekannten East Side Gallery ist sicher ein weiterer, schöner Vorteil. Diese Gewerbefläche verfügt über Zugänge von vorn (klassischer Ladenzugang mit schönem Schaufenster) oder vom Treppenhaus des Vorderhauses - er hat also zwei Zugänge. Der Grundriss zeigt im Erdgeschoss einen sehr geräumigen, vorderen Gast-/Verkaufsraum, die Fläche erstreckt sich dann über ein "Berliner Zimmer", das derzeit als Küche genutzt wird, bis nach hinten durch, hier finden sich noch zwei weitere Räume. Ferner sind ein WC, ein Duschbad und ein Büroraum vorhanden. Im Erdgeschoss verfügt diese Gewerbefläche über ca. 151,12 m², weitere ca. 70,40 m² finden sich im Kellerbereich, der sicher sehr gut zu Lagerzwecken genutzt werden kann. Vermietet werden somit in der Summe ca. 221,52 m². Der Laden wird sich vielbranchig nutzen lassen und der Grundriss sollte für alle Zwecke variabel sein. Besonders vorteilhaft sollte diese Gewerbefläche sicher für ein Café, eine Bäckerei oder auch eine Gastronomie sein, wobei man noch prüfen müsste, ob und wie eine Abluftanlage vom neuen Mieter installiert werden könnte. Ideal wäre natürlich eine Gastronomie/ein Café mit kalter Küche. Diese Mietfläche würde im derzeitigen Ist-Zustand und ohne eigentümerseitige Arbeiten vermietet werden. Das auf den Fotos erkennbare Inventur gehört nicht zur Mietsache und kann wahlweise vom derzeitigen Nutzer übernommen werden - Bedingung ist das aber nicht. Die Beheizung der Fläche erfolgt über eine Gasetagenheizung. Die Kosten der Beheizung sind in den hier angegebenen Nebenkostenvorschlüssen folglich noch nicht enthalten, vielmehr schließen Sie eigenverantwortlich und auf eigene Kosten für die Beheizung einen Gasversorungsvertrag bei einem Anbieter Ihrer Wahl. Gern vereinbaren wir einen Innenbesichtigungstermin mit Ihnen, der zwingend in unserem Beisein erfolgen muss. Schreiben Sie gern eine kurze eMail direkt aus dem Kontaktformular dieses Exposés, wir melden uns gern zurück. Wir freuen uns auf Ihren Kontakt. Die Anmietung dieses Geschäfts ist provisionsfrei für den neuen Mieter!

Standort:
Diese Gewerbefläche befindet sich mitten im schönen und aufstrebenden Rudolfkiez in Berlin-Friedrichshain. Die quirlige Umgebung wird gut frequentiert und bietet sicher auch interessanten Laufverkehr. In der näheren Umgebung haben sich in den letzten Jahren schon einige interessante Geschäfte und erfolgreiche Gastronomiebetriebe angesiedelt - auch für die nahe Zukunft ist mit einer weiter aufstrebenden Entwicklung zu rechnen. Die Nähe zum Spreeufer und z.B. der überregional bekannten "East Side Gallery" ist sicher ein weiterer Vorteil. Die Anbindung für Ihre Kunden ist durch den schnell erreichten U- und S-Bahnhof Warschauer Straße gut - Ihre Kunden werden Sie gut erreichen können. Guter Standort mit besten Erfolgsaussichten!

Sollte Ihr Gewerbe vorsteuerabzugsberechtigt sein, kommt zu den hier angegebenen Preisen noch die gesetzliche Mehrwertsteuer (derzeit 19%) hinzu. Irrtum und Zwischenvermietung vorbehalten. Weitere Angebote finden Sie tagesaktuell unter www.habitare-immobilien.de. Die Anmietung ist provisionsfrei für den neuen Mieter!

Objektstandort

Energieausweis

Verfügbarkeit Liegt vor

Baujahr 1905

Ausweistyp Bedarfsausweis

Endenergieverbrauch 141.9 kWh/(m²*a)

Heizungsart Etagenheizung

Wesentliche Energieträger Gas

Standortinformation

zu öffentl. Verkehrsmitteln 3 Gehminuten

zum nächsten Hauptbahnhof 15 Gehminuten

zum nächsten Flughafen 30 Gehminuten

zur nächsten BAB 10 Gehminuten


Inserat bearbeiten