Ihre Ansprechpartnerin
Susann Linke
Operations Specialist
Immobilienkauffrau (IHK)
Hausgeld 498 €
Heizkosten Keine Angabe
Verfügbar ab sofort lieferbar (Dachrohling)
Zimmer 7
Etagenzahl 4
Etage 4
Baujahr 1906
Wohnungstyp Dachgeschoss
Wohnfläche 198.95 m²
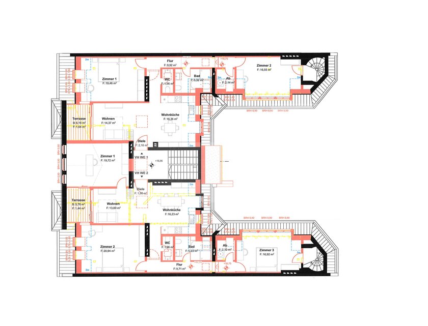
Highlights dieses Angebots: + 2 DG-Rohlinge für den Eigenausbau (Verkauf nur am Stück, Gesamtkaufpreis für beide DG-Rohlinge: EUR 539.000,00) + repräsentative Vorderhauslage + Baugenehmigung bereits vorhanden (wird mitverkauft, im Kaufpreis inklusive) + Planung bereits erfolgt, mit attraktiven Grundrissen und Südwest-Terrassen + Aufzug wird in den nächsten zwei Jahren noch auf Kosten des Verkäufers gebaut + bevorzugte Wohnlage im malerischen Berlin-Friedenau + Ruhige, kleine Wohnstraße mit tollem Baumbestand + Der Verkäufer wird binnen zwei Jahren nach Verkauf mit umfangreichen Arbeiten am Gemeinschaftseigentum beginnen (z.B. Fassadenarbeiten, Treppenhausherrichtungen, Bau eines Aufzugs im Vorderhaus).
Standort:
Das Verkaufsobjekt befindet sich in vorzüglicher Wohnlage in einer kleinen, ruhigen Friedenauer Wohnstraße. In harmonisch gewachsener, anspruchsvoller Umgebung verwöhnt diese ruhige Wohnlage mit sehr hohem Wohnwert und bietet gleichsam hervorragende Anbindungen an das Berliner Zentrum. Der traditionsreiche Standort bietet einen schön erhaltenen Bestand an Berliner Altbauten und zeigt eine stimmige Architektur - das Umfeld mit seinen kleinen und verträumten Seitenstraßen ist sehr sehenswert. In Friedenau finden Sie ein gefestigtes, kreatives und familiäres Publikum, das gern die zahlreichen kulturellen Möglichkeiten des Umfelds nutzt. Kleine Theater, sehenswerte Wochenmärkte, schöne Parkanlagen und eine über die Grenzen Friedenaus hinaus bekannte Cafészene: in Friedenau gibt es viel Schönes zu entdecken. Auch für Familien ist Friedenau optimal und es stehen einige Spielplätzen, Schulen und Kinderbetreuungseinrichtungen bereit. Bei aller Ruhe und auch Inspiration durch die vielfältigen Friedenauer Angebote profitieren Sie aber auch von einer sehr vorteilhaften Anbindung an den öffentlichen Personennahverkehr. Der S-Bahnhof Friedenau ist schon nach sehr kurzem Spaziergang erreicht. Alternativ haben Sie über den Bahnhof Friedrich-Wilhelm-Platz auch besten Anschluss an die U-Bahnlinie (U9), die Sie in wenigen Minuten direkt in die City-West bringt. Autofahrer werden sich zudem über den exzellenten Anschluss an die Stadtautobahn freuen. Auch einkaufen lässt es sich bestens: an der Steglitzer Schloßstraße finden Sie ein echtes Einkaufsparadies mit einer reizvollen Mischung aus großen Warenhäusern, Shopping Malls und spezialisiertem Einzelhandel – es ist für jeden Geschmack etwas dabei. Freuen Sie sich auf ein besonderes Wohnerlebnis im hochbegehrten Berlin-Friedenau!
Sehr gern besichtigen wir die DG-Rohlinge mit Ihnen und führen Sie auch durch die Bereiche des Gemeinschaftseigentums. Besichtigungen haben zwingend in unserem Beisein zu erfolgen. Schreiben Sie gern eine kurze eMail direkt aus diesem Kontaktformular, wir senden Ihnen dann das weiterführende Exposé zu. Diese Immobilie wird von uns im Alleinauftrag angeboten. Der Ankauf dieses Objekts ist provisionspflichtig für den Käufer. Unsere Courtage beträgt 2,98 % des Gesamtkaufpreises (inkl. MwSt. 19 %) und ist verdient und fällig bei Beurkundung des Kaufvertrags. Der Maklervertrag mit uns kommt mit schriftlicher Vereinbarung und/oder auch durch die Inanspruchnahme unserer Maklertätigkeit auf Basis des Exposés und der hierin genannten Bedingungen zustande. Alle Angaben in diesem Exposé sind ohne Gewähr und basieren auf Informationen, die uns von unserem Auftraggeber und/oder dessen Bevollmächtigen zur Verfügung gestellt wurden. Wir übernehmen keine Gewähr für Vollständigkeit, Richtigkeit und Aktualität dieser Angaben. Irrtum, Angebotsänderungen und Zwischenverkauf vorbehalten. Wir bitten um Verständnis, dass wir vollständige Kontaktdaten (Name, Adresse, eMail-Adresse, Telefonummer) von Ihnen benötigen, um Ihre Anfrage bearbeiten zu können. Als aktives Mitglied des Immobilienverbandes Deutschland (IVD) gewährleisten wir Ihnen eine seriöse, kompetente und diskrete Bearbeitung Ihrer Anfrage. Wir freuen uns auf Ihren Kontakt. Möchten auch Sie Ihre Eigentumswohnung verkaufen oder vermieten? Mit langjähriger Markterfahrung und viel Freude an persönlicher Dienstleistung sind wir Ihr professioneller Partner für den erfolgreichen Verkauf oder die Vermietung Ihrer Immobilie. Wir freuen uns auf Ihren Kontakt! habitare Immobilien IVD wurde auch im Jahr 2026 von einer unabhängigen Jury des Fachmagazins Bellevue als „Bellevue Best Property Agents“ ausgezeichnet – nun bereits zum neunzehnten Mal in Folge.
Verfügbarkeit Liegt vor
Baujahr 1906
Ausweistyp Verbrauchsausweis
Endenergieverbrauch 130 kWh/(m²*a)
Heizungsart Etagenheizung
Wesentliche Energieträger SOUR_GAS
Käuferprovision: 2,98 % des Gesamtkaufpreises (inklusive Mehrwertsteuer)
Der Ankauf dieser Immobilie ist provisionspflichtig für den Käufer. Unsere Courtage beträgt 2,98 % des Gesamtkaufpreises (inkl. MwSt. 19 %) und ist verdient und fällig bei Beurkundung des Kaufvertrags.

Wir haben nicht nur tolle Immobilien im Angebot, sondern nutzen auch technisch relevante Cookies. Mit
diesen ermöglichen wir, dass unsere Webseite zuverlässig und sicher läuft. Lesen Sie mehr dazu in
unserer